Llandeilo Market Hall - Yr Hen Farchnad, Llandeilo
Carmarthen Street
Llandeilo
SA19 6AP
- 01267 246246
- estates@carmarthenshire.gov.uk
- photos
Key Details
Description
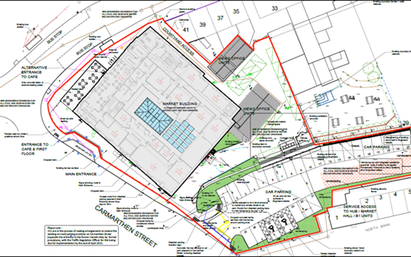
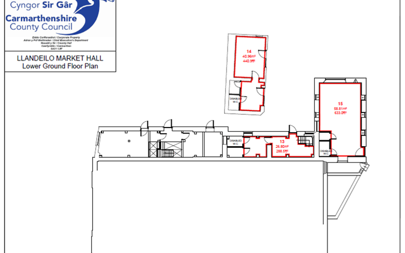
The refurbishment of the Grade II listed Llandeilo Market Hall brings the building back into economic use, by providing high quality employment space. The refurbished building will offer three floors of mixed-use space, the main use being offices and space for business, the other uses being retail and the Café.
The offices are located throughout the building on the Ground Floor, Lower Ground Floors and Upper/Roof Floor , the retail space is located along the Carmarthen Street frontage, and the Café along the New Road frontage. There will also be a market/events hall at the centre of the building, the space being conveniently located to the Café. There will be a Tech Hub/Hot Desk area, shared meeting room, and an external events area. Parking for staff is available in the new car park adjoining the building. The offices on the Upper Floor will have access and the use of a roof terrace.
Location
Situated in the heart of Llandeilo, the market hall is a Grade II listed building constructed in the 1830’s. Llandeilo is a historic town in Carmarthenshire which lies midway between Carmarthen and Llandovery, situated at the crossing of the River Towy by the A483 on a 19th-century stone bridge.
Viewings
Should you wish to make an appointment to view the property, please provide us with your contact details and proposed use, and we will contact you once the construction phase allows for public viewings.
For further information, particulars and application forms please email: estates@carmarthenshire.gov.uk






