Plot 17,Llanelli
Plot 17, Brynmefys, Furnace, Llanelli
- photos
Key Details
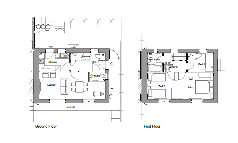
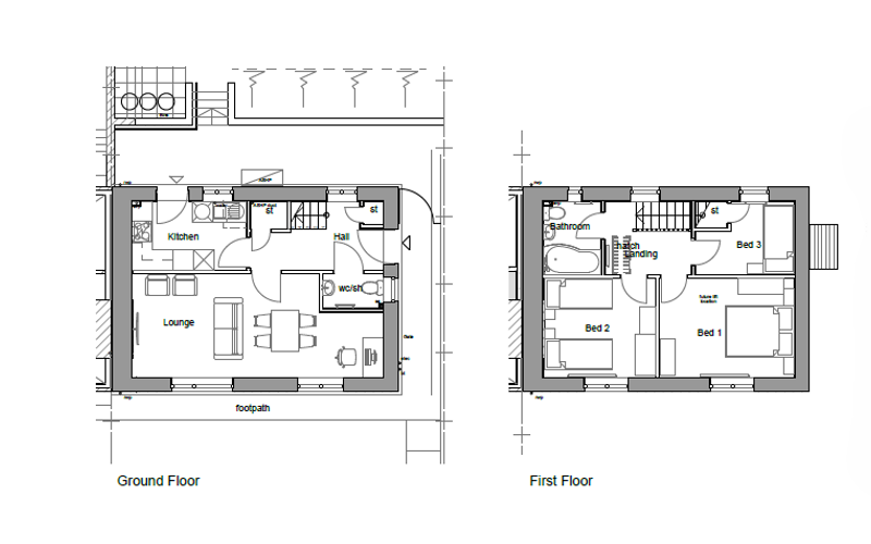
This is a high quality, energy efficient (EPC A rated) new build three-bedroom semi-detached affordable home at Brynmefys, Furnace in Llanelli - This is an affordable home available for eligible applicants only.
This new home is perfectly located on the edge of Llanelli Town, within easy reach of exciting facilities such as retail shops, cinema, gyms and other entertainment venues. Close by are dental and medical centres, as well as primary and secondary schools.
There are great road links providing access to the M4. The golden beaches of Pembrey and Burry Port are within easy reach and the award winning Ffos Las racecourse is also nearby. Llanelli, Swansea and Carmarthen are all within easy travelling distance making this an ideal location.
This affordable 3-bedroom home comes with Freehold tenure.
If you are interested in buying this home, you will need to be registered to buy an affordable home with Carmarthenshire County Council (see our website for details) and you are encouraged to arrange a viewing when this property is ready.
Nominations of buyers for this home will be made from now until the 19 December, 2025.
For information on the scheme please visit the Find a Home to Buy pages.
Disclaimer: All images used are for illustrative purposes only and are intended to convey the concept and vision for the development. They are for guidance only, may alter as work progresses and do not necessarily represent a true and accurate depiction of the finished product and specification may vary. All images and dimensions are not intended to form part of any contract or warranty.
These particulars are intended to give a fair description of the property, but are set out for guidance only. Their accuracy cannot be guaranteed and you should satisfy yourself by inspection or otherwise as to their correctness.





